
Lage und Lebensqualität
Die Seniorenwohnanlage Harmonie Vita befindet sich im Zentrum der Kerngemeinde Rasdorf, eingebettet in eine ruhige und landschaftlich reizvolle Umgebung. Dies trägt maßgeblich zur hohen Lebensqualität der Bewohner*innen bei. Die Nähe zu Arztpraxis, Physiotherapie, Kirche, Pfarrheim und Seniorenzentrum ist gegeben.
Mobilität und Erreichbarkeit
Der Alltag der Bewohner*innen wird durch fußläufig erreichbare Einkaufsmöglichkeiten, eine gute Anbindung an den öffentlichen Nahverkehr sowie einen eigenen Shuttle-Service erleichtert.
Service- und Dienstleistungsangebot
Im Haus stehen verschiedene Dienstleistungen zur Verfügung, darunter eine Facharztpraxis, ein Friseur, Fußpflege, Pflegeberatung und Kiosk mit Postservice.
Pflegeleistungen
Ambulante Pflege- und Tagespflegeleistungen werden direkt vor Ort von der Harmonie Care GmbH angeboten.
Wohnkonzept und Appartements
Das Wohnkonzept umfasst Einzel- und Doppelappartements. Das Gebäude ist mit Öffentlichen Verkehrsmitteln erreichbar, zudem sind Park-möglichkeiten vorhanden.
Beispiel - Einzelappartement

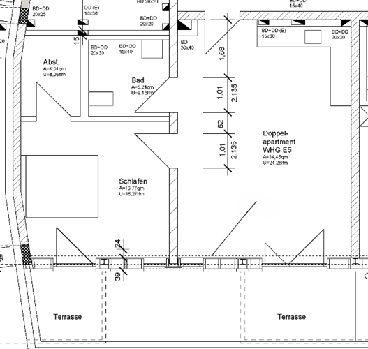
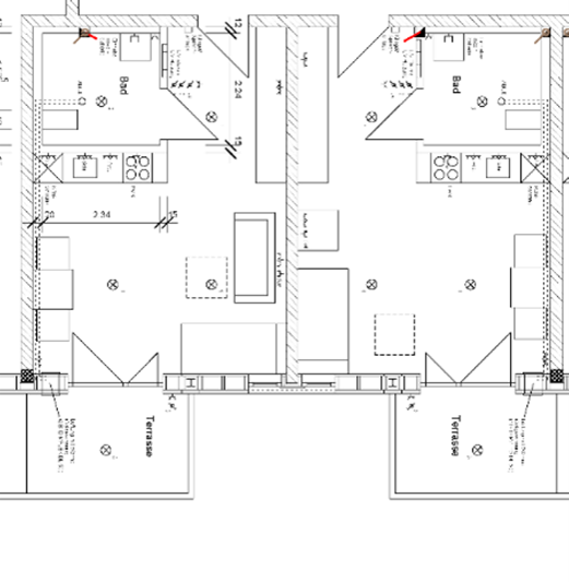
Beispiel - Doppelappartement
Im Überblick
17 Einzelapartments (35,5–60 m²)
13 Doppelapartments (52,4–83 m²)
Barrierefrei und Rollstuhl gerecht
14 Einheiten für Mieter*innen mit Wohnberechtigungsschein
Terrasse/Balkon, Garten
Gemeinschaftsräume
Wellnessbad, Fitnessraum
Waschküche, Kellerräume, PKW-/Fahrradstellplätze
Telefon/Internet/SAT-Anlage
Leistungsangebote
24h Hausnotruf
Hauswirtschaftliche Dienstleistungen
Nutzung von Wasch- und Trockenraum
Mahlzeitenservice (Frühstück, Mittagstisch Nachmittagskaffee, Abendessen)
Beratung, Alltagsunterstützung, Fahrdienst, Hilfe bei Behördengänge
Vermittlung und Organisation von Pflege
Freizeitaktivitäten und weiteren Dienst-leistungen
Hausmeister-, Garten- und Winterdienst, Post- und Apothekenservice
Ihr Kontakt
Betriebswirtin B. A.
BIRGIT KLOMANN-RENKERT
Geschäftsführerin
FON 06651 91900-23
Harmonie Vita GmbH
Großentafter Straße 2 · 36169 Rasdorf
FON 06651 91900-23
FAX 06651 91999-50
E-MAIL